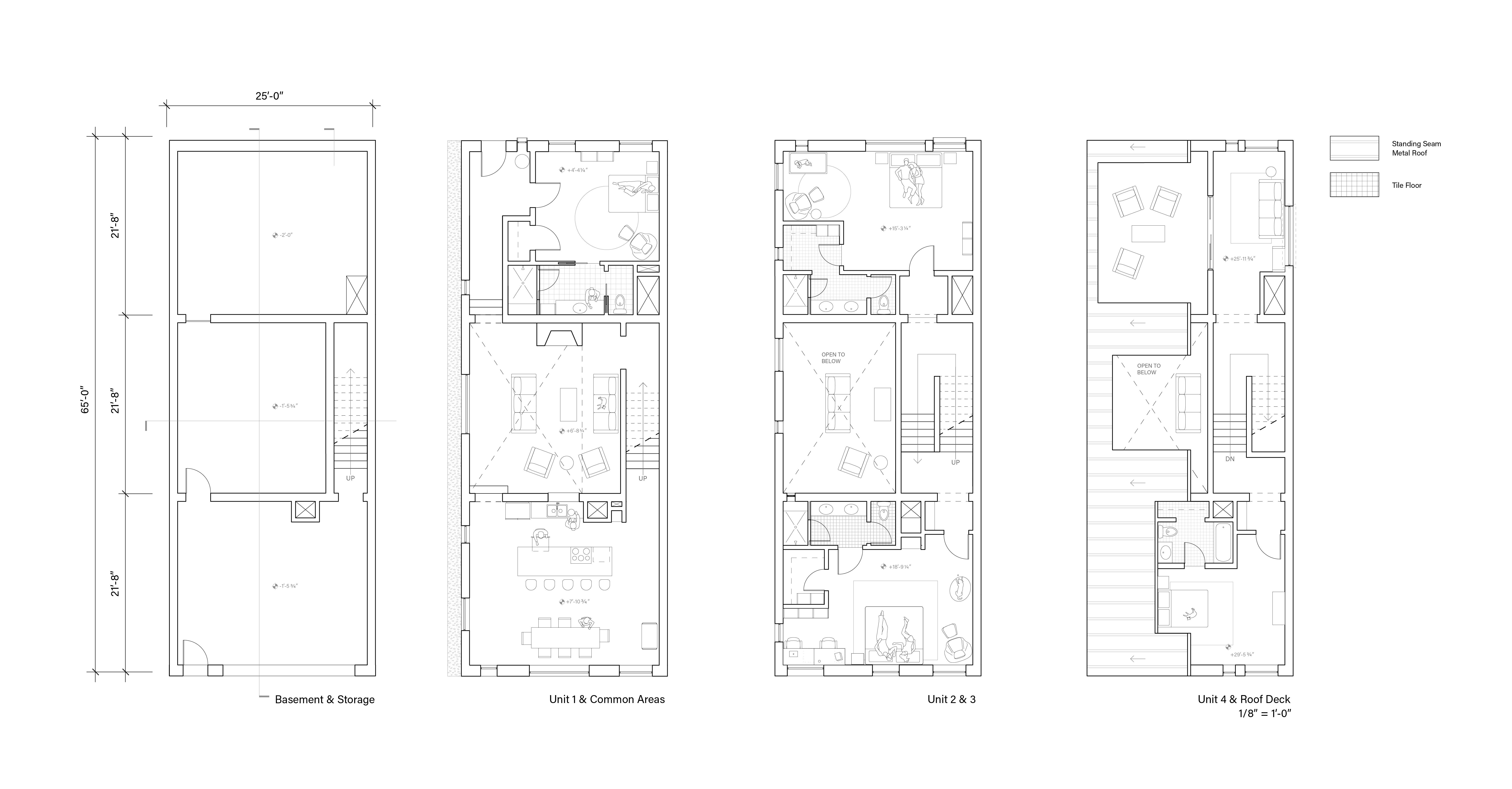
Rowhouse
19


Gables, Bumps, and Lumps!


Instructor Kit McCullough + Mick Kennedy
In Collaboration with Christian Austin + Luis Arjona


    Gables, Bumps, and Lumps is a Detroit Housing project that is critical of the single-family home as well as the mid-rise apartment. Occupying a density between these two typologies the rowhouse allows for great attention to the craft of a single building while providing enough uniformity to be replicated across the site incrementally.
   

 



1. Single Rowhouse Floor Plans
2. Site plan


1-2 Site Model Photos




1-5 Roof Profile Sections 


1-3 Model Photos