Stacking 
18


A City Hall for... The People!


Instructor Liz Gálvez


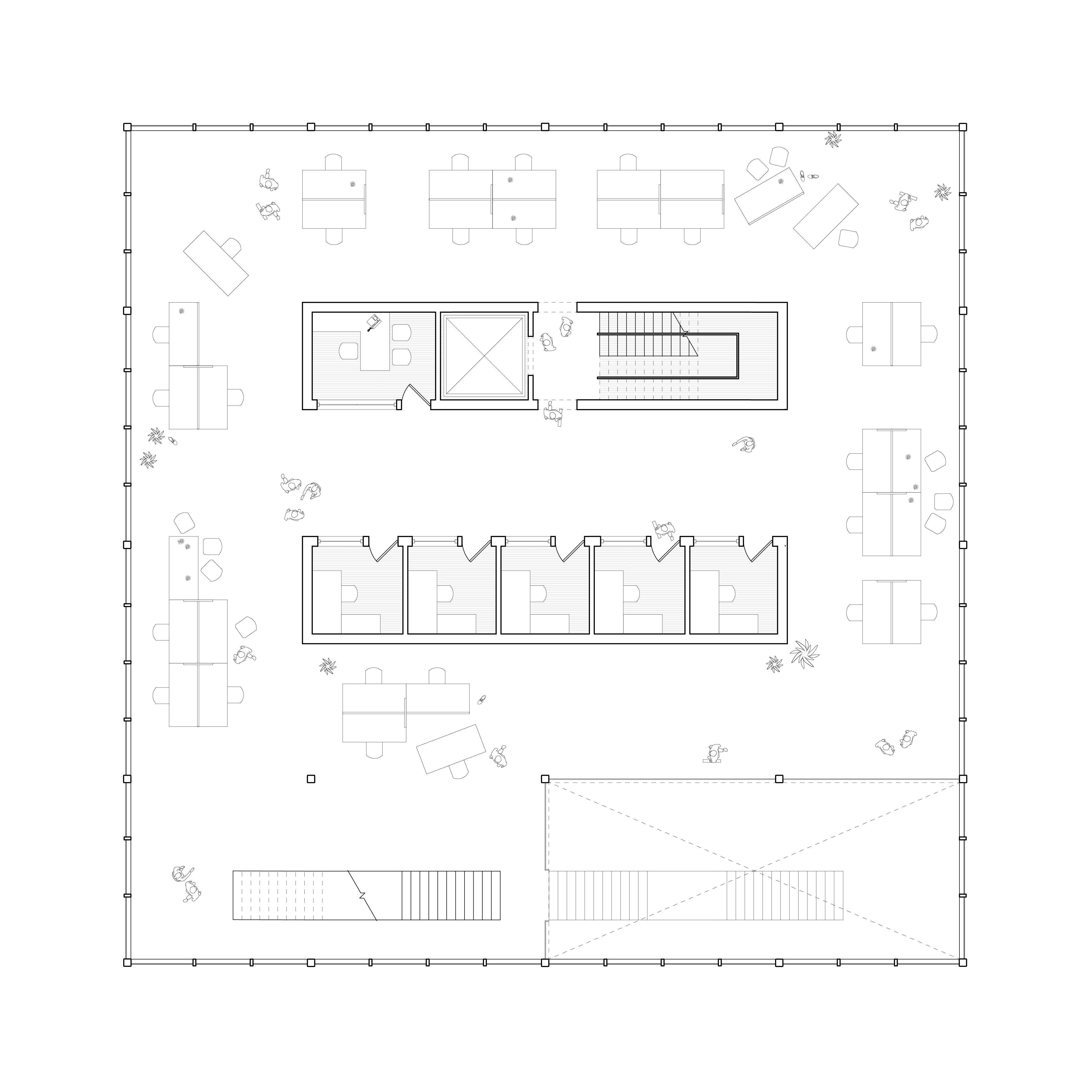
      A City Hall for... The People re-appropriates space for public citizens through a typological study of the office tower, typical office layouts, and challenges the open-office plan. 











1-2 Model Photos